Khóa cửa tay gạt hiện đang là sản phẩm được người dùn tin tưởng sử dụng nhiều nhất chính vì thế khóa cửa kính sử dụng tay gạtcó cấu tạo đặc biệt nhất hiện nay với chất liệu cao cấp cùng với thương hiệu đẳng cấp hơn nữa lại nó lại vô cùng tiện lợi cũng như hiện đại.
Để giúp khách hàng hiểu biết thêm cấu tạo về sản phẩm, KHÓA HOÀNG YẾN xin được cung cấp một số các thông tin cơ bản và gửi tới khách hàng báo giá khóa cửa tay gạt như sau
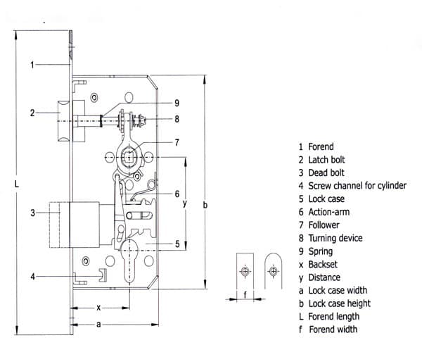
Đặc điểm cấu tạo khóa cửa tay gạt dùng cho cửa kính
Thân khóa cửa kính tay gạt
Đây là bộ phận tất yếu và quan trọng nhất trong cấu tạo của khóa cửa kính tay gạt.
Nó là thành phần quyết định độ bền của cả bộ khóa.
Thân khóa cửa tay gạt dùng cho cửa kính thông thường sẽ bao gồm các bộ phận chủ yếu như sau: Cò khóa, chốt, bản mặt phía trước, cốt khóa, lỗ vuông để cốt khóa, bát khóa, nắp khóa, bộ phận xoay chỉnh chiều cò khóa, lò xo phụ trợ, …
Cò khóa là bộ phận có chức năng giữ cửa khi chúng ta đóng cửa, thông thường cò khóa có chiều dài khoảng 10mm.
Cò khóa thường được làm bằng chất liệu đồng, hợp kim cao cấp hoặc làm bằng inox đối với loại cao cấp.
Chốt khóa cửa tay gạt dùng cho cửa kính gồm có hai dạng là chốt khóa 1 nấc và chốt khóa 2 nấc và thông dụng nhất hiện nay là chốt khóa 2 nấc vì nó an toàn hơn.
Bát khóa, được bắt ở phía đối diện của thân khóa như khung bao để cò khóa và chốt khóa cài vào. Tùy vào thân khóa mà ta có các kích thước của bát khóa khác nhau….
Tay khóa cửa kính tay gạt
Tay khóa là một bộ phận không kém phần quan trọng. Nó không chỉ giúp cho việc đóng mở cửa được dễ dàng hơn mà nó còn giúp thể hiện phong cách cũng như gu thẩm mỹ của chủ nhân. Tay khóa gạt được đươc chia làm hai loại chính là: tay khóa nẹp liền và tay khóa nẹp rời. Vật liệu được sử dụng làm tay khóa cửa kính tay gạt chủ yếu là được làm từ loại vật liệu inox cao cấp với độ bền và độ cứng cao. Ngoài ra, tay gạt cửa kính còn có thể dễ dàng tạo hình khối để làm cho khóa cửa kính không quá đơn điệu.
Trục khóa cửa kính tay gạt
Trục khóa cửa kính tay gạt thông thường sử dụng trục bi. Đây là chi tiết quan trọng trong việc đảm bảo sự an toàn cho ngôi nhà của bạn.
Công dụng của khóa cửa kính tay gạt
Bảo vệ sự an toàn của tài sản cũng như con người: Khóa cửa kính nói chung và khóa tay gạt cửa kính nói riêng đều có chức năng hàng đầu là bảo vệ sự an toàn cho người và tài sản của ngườ sử dụng. Nhờ có sự phát triển của khoa học kỹ thuật mà khóa cửa kính tay gạt hiện nay có độ bảo mật và tính an toàn cao. Do đó, khách hàng có thể yên tâm khi sử dụng sản phẩm.
Dễ dàng đóng, mở cửa: Một tính năng hết sức đặc biệt của khóa cửa kính tay gạt đó chính là khả năng đóng, mở cửa dễ dàng. Để có được đặc điểm này là do khóa cửa kính có tay nắm dễ dàng cho cửa kính đóng – mở và giảm thiểu tiếng động.
Tăng thêm tính thẩm mỹ: Khóa cửa kính tay nắm gạt được sản xuất bằng vật liệu inox cao cấp nên có màu sắc đặc trưng là màu ghi sáng. Với màu sắc như vậy lại kết hợp với độ trong suốt của kính tạo nên sự sang trọng, hiện đại cho cả công trình sử dụng. Đối với các công trình đã, đang và sẽ sử dụng cửa kính thì đây là sự lựa chọn vô cùng chuẩn xác.
Ngoài ra KHÓA HOÀNG YẾN còn là đơn vị cung cấp khóa cửa gỗ chất lượng cao và những sản phẩm khóa cửa chính nhập khẩutại thị trường việt nam
Để giúp khách hàng hiểu biết thêm cấu tạo về sản phẩm, KHÓA HOÀNG YẾN xin được cung cấp một số các thông tin cơ bản và gửi tới khách hàng báo giá khóa cửa tay gạt như sau

Đặc điểm cấu tạo khóa cửa tay gạt dùng cho cửa kính

Thân khóa cửa kính tay gạt
Đây là bộ phận tất yếu và quan trọng nhất trong cấu tạo của khóa cửa kính tay gạt.
Nó là thành phần quyết định độ bền của cả bộ khóa.
Thân khóa cửa tay gạt dùng cho cửa kính thông thường sẽ bao gồm các bộ phận chủ yếu như sau: Cò khóa, chốt, bản mặt phía trước, cốt khóa, lỗ vuông để cốt khóa, bát khóa, nắp khóa, bộ phận xoay chỉnh chiều cò khóa, lò xo phụ trợ, …
Cò khóa là bộ phận có chức năng giữ cửa khi chúng ta đóng cửa, thông thường cò khóa có chiều dài khoảng 10mm.
Cò khóa thường được làm bằng chất liệu đồng, hợp kim cao cấp hoặc làm bằng inox đối với loại cao cấp.
Chốt khóa cửa tay gạt dùng cho cửa kính gồm có hai dạng là chốt khóa 1 nấc và chốt khóa 2 nấc và thông dụng nhất hiện nay là chốt khóa 2 nấc vì nó an toàn hơn.
Bát khóa, được bắt ở phía đối diện của thân khóa như khung bao để cò khóa và chốt khóa cài vào. Tùy vào thân khóa mà ta có các kích thước của bát khóa khác nhau….
Tay khóa cửa kính tay gạt
Tay khóa là một bộ phận không kém phần quan trọng. Nó không chỉ giúp cho việc đóng mở cửa được dễ dàng hơn mà nó còn giúp thể hiện phong cách cũng như gu thẩm mỹ của chủ nhân. Tay khóa gạt được đươc chia làm hai loại chính là: tay khóa nẹp liền và tay khóa nẹp rời. Vật liệu được sử dụng làm tay khóa cửa kính tay gạt chủ yếu là được làm từ loại vật liệu inox cao cấp với độ bền và độ cứng cao. Ngoài ra, tay gạt cửa kính còn có thể dễ dàng tạo hình khối để làm cho khóa cửa kính không quá đơn điệu.
Trục khóa cửa kính tay gạt

Trục khóa cửa kính tay gạt thông thường sử dụng trục bi. Đây là chi tiết quan trọng trong việc đảm bảo sự an toàn cho ngôi nhà của bạn.
Công dụng của khóa cửa kính tay gạt
Bảo vệ sự an toàn của tài sản cũng như con người: Khóa cửa kính nói chung và khóa tay gạt cửa kính nói riêng đều có chức năng hàng đầu là bảo vệ sự an toàn cho người và tài sản của ngườ sử dụng. Nhờ có sự phát triển của khoa học kỹ thuật mà khóa cửa kính tay gạt hiện nay có độ bảo mật và tính an toàn cao. Do đó, khách hàng có thể yên tâm khi sử dụng sản phẩm.
Dễ dàng đóng, mở cửa: Một tính năng hết sức đặc biệt của khóa cửa kính tay gạt đó chính là khả năng đóng, mở cửa dễ dàng. Để có được đặc điểm này là do khóa cửa kính có tay nắm dễ dàng cho cửa kính đóng – mở và giảm thiểu tiếng động.
Tăng thêm tính thẩm mỹ: Khóa cửa kính tay nắm gạt được sản xuất bằng vật liệu inox cao cấp nên có màu sắc đặc trưng là màu ghi sáng. Với màu sắc như vậy lại kết hợp với độ trong suốt của kính tạo nên sự sang trọng, hiện đại cho cả công trình sử dụng. Đối với các công trình đã, đang và sẽ sử dụng cửa kính thì đây là sự lựa chọn vô cùng chuẩn xác.
Ngoài ra KHÓA HOÀNG YẾN còn là đơn vị cung cấp khóa cửa gỗ chất lượng cao và những sản phẩm khóa cửa chính nhập khẩutại thị trường việt nam